Gialova Hills Center Apartments
8 apartments with sea view in the heart of Gialova
The Gialova Hills Center Apartments will be located above the Greek village of Gialova on a 2,841 m² elevated plot, idyllically surrounded on three sides by olive groves. Yet they are centrally located, with the town center just a few steps downhill. The elevated position of the plot will grant even the ground-floor apartments stunning views over the village and beyond, stretching far into the Bay of Navarino.
Directly in front of the building will be the pool terraces and the long communal pool, as well as a lounge area opposite. The parking area for cars will be located slightly lower due to the slight slope, making it barely noticeable and increasing the distance between the building and the street even further.
Invest to earn and enjoy
The GHC Apartments concept provides owners with an agreed-upon amount of personal use, while the remaining weeks are used for rental purposes to generate long-term additional income. Owners can confidently outsource the organization of rentals, cleaning, and facility maintenance, as we have the service partners on-site. This means the apartment owners are either on vacation or earning some extra income during their absence.


The Gialova Hills Center Apartments will be located above the Greek village of Gialova on a 2,841 m² elevated plot, idyllically surrounded by olive groves on three sides. Yet they are centrally located, with the town center just a few steps downhill. The elevated position of the plot will grant even the ground-floor apartments stunning views over the village and beyond, stretching far into the Bay of Navarino.

Directly in front of the building will be the pool terraces and the long communal pool, as well as a lounge area opposite. The parking area for cars will be located slightly lower due to the slight slope, thus increasing the distance between the building and the street.

Invest to earn and enjoy
The GHC Apartments concept provides owners with an agreed-upon amount of personal use, while the remaining weeks are used for rental purposes to generate long-term additional income. Owners can confidently outsource the organization of rentals, cleaning, and facility maintenance, as we have the service partners on-site. This means the apartment owners are either on vacation or earning some extra income during their absence.
All apartments are sold
The assets of these apartments in an excellent location:
- on the hill - thus the
Apartments Meerblick
- in the center - so the shops are
just a jump away
- only 500m to the promenade and
Strand
- surrounded by olive groves - thus
central yet secluded
- 28-meter-long communal pool
- private lounge area with cabanas
- one parking space per apartment
Construction start: autumn 2023
planned completion: autumn 2025
If you have any questions, you can contact us at any time
For more information about investing in your future, see the INVESTMENT section
equipment
- Exterior walls made of natural stone
- Panoramic windows
- high-quality sanitary objects
- modern fitted kitchen
- large format floor tiles or
ground screed with a concrete look
- Basement with lockable
Storage compartment
All apartments are sold
The assets of these apartments in an excellent location:
- on the hill - thus the apartments offer sea views
- in the center - so the shops are just a stone's throw away
- only 500m to the promenade and beach
- surrounded by olive groves - thus central yet secluded
- 28-meter-long communal pool
- private lounge area with cabanas
- one parking space per apartment
Construction start: autumn 2023
planned completion: autumn 2025
If you have any questions, you can contact us at any time
For more information about investing in your future, see the INVESTMENT section
Arrival

- Vienna to Athens International Airport
about 2 hours 10 minutes flight time
(non-stop)
- Vienna to Kalamata International
Airport (June-October)
about 2 hours 10 minutes flight time
(non-stop)
- Athens International Airport to
Gialova:
about 3 hours by car
- Kalamata International Airport to
Gialova:
about 40 minutes by car
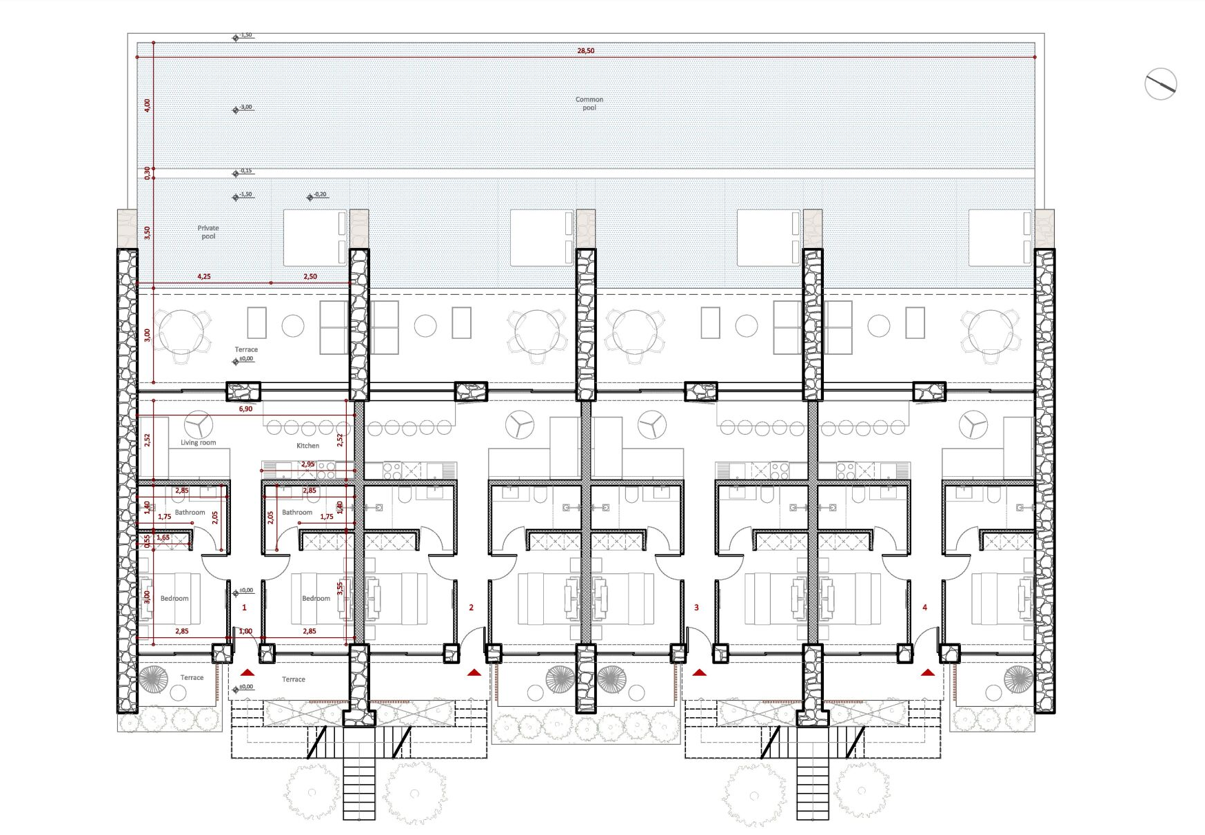
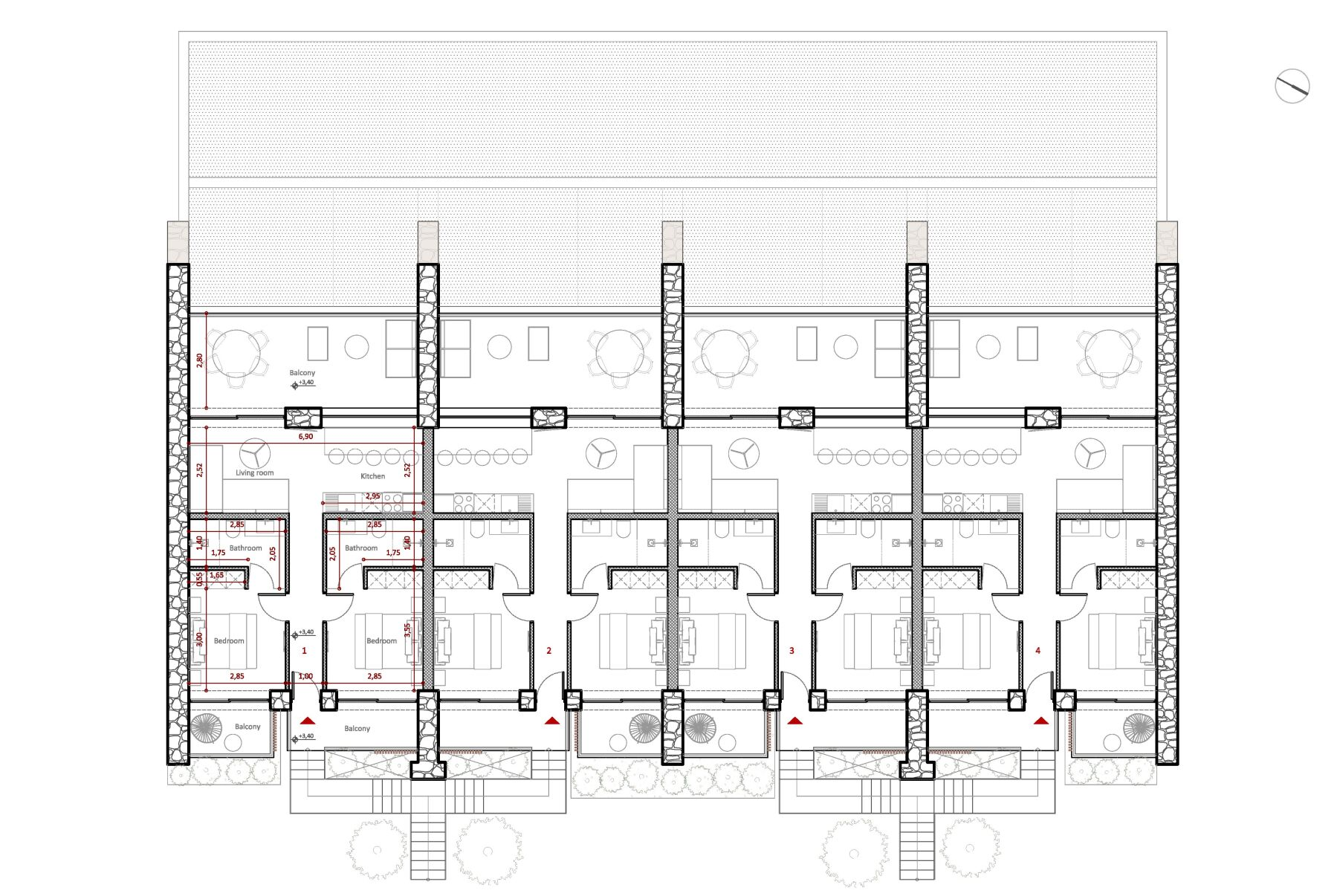
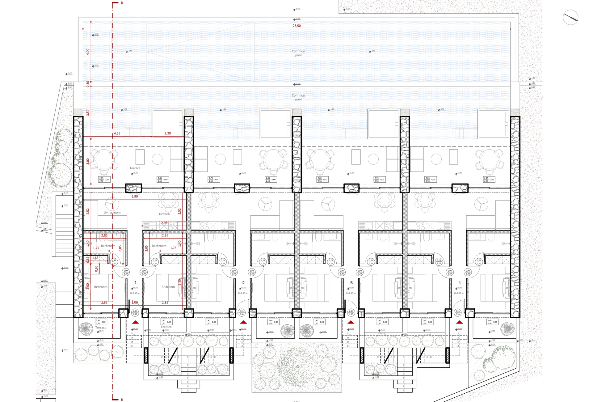
Floor plans and views
4 ground floor apartments
Each of the almost 54m2 apartments has 2 bedrooms with en-suite bathrooms and a kitchen-living room from which you can overlook not only the 20m2 terrace and the pool but also Navarino Bay.
These 4 apartments each have direct access to the communal pool.
Access to the apartments is via the rear, where each bedroom has its own small terrace.

4 upper floor apartments
Each of the almost 54m2 apartments has two bedrooms, equipped with king-size beds and built-in wardrobes, an en-suite bathroom, and a kitchen-living room with a large glass front. The view extends over the 20m2 terrace, the pool, and all the way to the sea.
Access to the apartments is via the rear, where each bedroom has its own small terrace.

basement
In addition to the necessary technical rooms, the basement also offers a toilet and almost 2m2 of storage space for each apartment.

Floor plans and views
4 ground floor apartments
Each of the almost 54m2 apartments has 2 bedrooms with en-suite bathrooms and a kitchen-living room from which you can overlook not only the 20m2 terrace and the pool but also Navarino Bay.
These 4 apartments each have direct access to a small, separate pool area.
Access to the apartments is via the rear, where each bedroom has its own small terrace.

4 upper floor apartments
Each of the almost 54m2 apartments has two bedrooms, equipped with king-size beds and built-in wardrobes, an en-suite bathroom, and a kitchen-living room with a large glass front. The view extends over the 20m2 terrace, the pool, and all the way to the sea.
Access to the apartments is via the rear, where each bedroom has its own small terrace.

basement
In addition to the necessary technical rooms, the basement also offers a toilet and almost 2m2 of storage space for each apartment.









Construction progress:
Image title
Untertitel hier einfügenButton
Image title
Untertitel hier einfügenButton
Image title
Untertitel hier einfügenButton
Image title
Untertitel hier einfügenButton
Image title
Untertitel hier einfügenButtonImage title
Untertitel hier einfügenButtonImage title
Untertitel hier einfügenButton
Image title
Untertitel hier einfügenButton
Image title
Untertitel hier einfügenButton
Image title
Untertitel hier einfügenButton
Image title
Untertitel hier einfügenButton
Image title
Untertitel hier einfügenButton

