Gialova Hills Center Apartments
8 Apartments mit Meerblick im Herzen Gialovas
Die Gialova Hills Center Apartments werden oberhalb des griechischen Örtchens Gialova auf einem 2.841 m2 großem, erhöhten Grundstück liegen, 3-seitig idyllisch umschlossen von Olivenhainen. Und dennoch liegen sie so zentral, da es zum Ortskern nur wenige Schritte leicht bergab geht. Die erhöhte Lage des Grundstücks gewährt bereits den Apartments im Erdgeschoß einen traumhaften Blick über den Ort und darüber hinaus bis weit in die Bucht von Navarino.
Vor dem Gebäude werden sich direkt anschließend die Pool-Terrassen und der lange Gemeinschaftspool sowie eine gegenüberliegende Lounge-Area befinden, der Abstellbereich für Autos wird sich aufgrund der leichten Hanglage etwas tiefer gelegen kaum bemerkbar machen und erweitert den Abstand zwischen Gebäude und Straße umso mehr.
Investieren um zu verdienen und genießen
Das Konzept der GHC Apartments sieht vor, dass den Eigentümern eine vereinbarte Menge an Eigennutzung zur Verfügung stehen, die restlichen Wochen der Vermietung für ein langfristiges Zusatzeinkommen dienen sollen. Die Organisation der Vermietung, Reinigung, Betreuung der Anlage,... können die Eigentümer unbesorgt aus ihren Händen geben, wir haben die Service-Partner vor Ort. Die Eigentümer der Apartments sind somit entweder im Urlaub oder verdienen sich mit Ihrer Abwesenheit gerade etwas dazu.


Die Gialova Hills Center Apartments werden oberhalb des griechischen Örtchens Gialova auf einem 2.841 m2 großem, erhöhten Grundstück liegen, 3-seitig idyllisch umschlossen von Olivenhainen. Und dennoch liegen sie so zentral, da es zum Ortskern nur wenige Schritte leicht bergab geht. Die erhöhte Lage des Grundstücks gewährt bereits den Apartments im Erdgeschoß einen traumhaften Blick über den Ort und darüber hinaus bis weit in die Bucht von Navarino.

Vor dem Gebäude werden sich direkt anschließend die Pool-Terrassen und der lange Gemeinschaftspool sowie eine gegenüberliegende Lounge-Area befinden, der Abstellbereich für Autos wird sich aufgrund der leichten Hanglage etwas tiefer gelegen kaum bemerkbar machen und erweitert den Abstand zwischen Gebäude und Straße umso mehr.

Investieren um zu verdienen und genießen
Das Konzept der GHC Apartments sieht vor, dass den Eigentümern eine vereinbarte Menge an Eigennutzung zur Verfügung stehen, die restlichen Wochen der Vermietung für ein langfristiges Zusatzeinkommen dienen sollen. Die Organisation der Vermietung, Reinigung, Betreuung der Anlage,... können die Eigentümer unbesorgt aus ihren Händen geben, wir haben die Service-Partner vor Ort. Die Eigentümer der Apartments sind somit entweder im Urlaub oder verdienen sich mit Ihrer Abwesenheit gerade etwas dazu.
Alle Apartments sind verkauft
Die Assets dieser Apartments in hervorragender Lage:
- am Hügel - somit gewähren die
Apartments Meerblick
- im Zentrum - somit sind die Geschäfte
nur einen Sprung entfernt
- nur ca 500m zu Promenade sowie
Strand
- umgeben von Olivenhainen - somit
zentral und dennoch abgeschieden
- 28 Meter langer Gemeinschaftspool
- privater Lounge-Bereich mit Cabanas
- ein Parkplatz je Apartment
erfolgter Baubeginn: Herbst 2023
geplante Fertigstellung: Herbst 2025
Bei Fragen können Sie jederzeit mit uns in Kontakt treten
Näheres zur Investition in Ihre Zukunft finden Sie unter der Rubrik
INVESTMENT
Ausstattung
- Außenwände aus Naturstein
- Panoramafenster
- hochwertige Sanitärobjekte
- moderne Einbauküche
- großformatige Bodenfliesen oder
geschliffener Estrich in Betonoptik
- Kellergeschoss mit abschließbarem
Storage Abteil
Alle Apartments sind verkauft
Die Assets dieser Apartments in hervorragender Lage:
- am Hügel - somit gewähren die Apartments Meerblick
- im Zentrum - somit sind die Geschäfte nur einen Sprung entfernt
- nur ca. 500m zu Promenade sowie Strand
- umgeben von Olivenhainen - somit zentral und dennoch abgeschieden
- 28 Meter langer Gemeinschaftspool
- privater Lounge-Bereich mit Cabanas
- ein Parkplatz je Apartment
erfolgter Baubeginn: Herbst 2023
geplante Fertigstellung: Herbst 2025
Bei Fragen können Sie jederzeit mit uns in Kontakt treten
Näheres zur Investition in Ihre Zukunft finden Sie unter der Rubrik
INVESTMENT
Anreise

- Wien nach Athen International Airport
ca 2 Stunden 10 Minuten Flugzeit
(non-stop)
- Wien nach Kalamata International
Airport (Juni-Oktober)
ca 2 Stunden 10 Minuten Flugzeit
(non-stop)
- Athen International Airport nach
Gialova:
ca. 3 Stunden mit dem Auto
- Kalamata International Airport nach
Gialova:
ca. 40 Minuten mit dem Auto
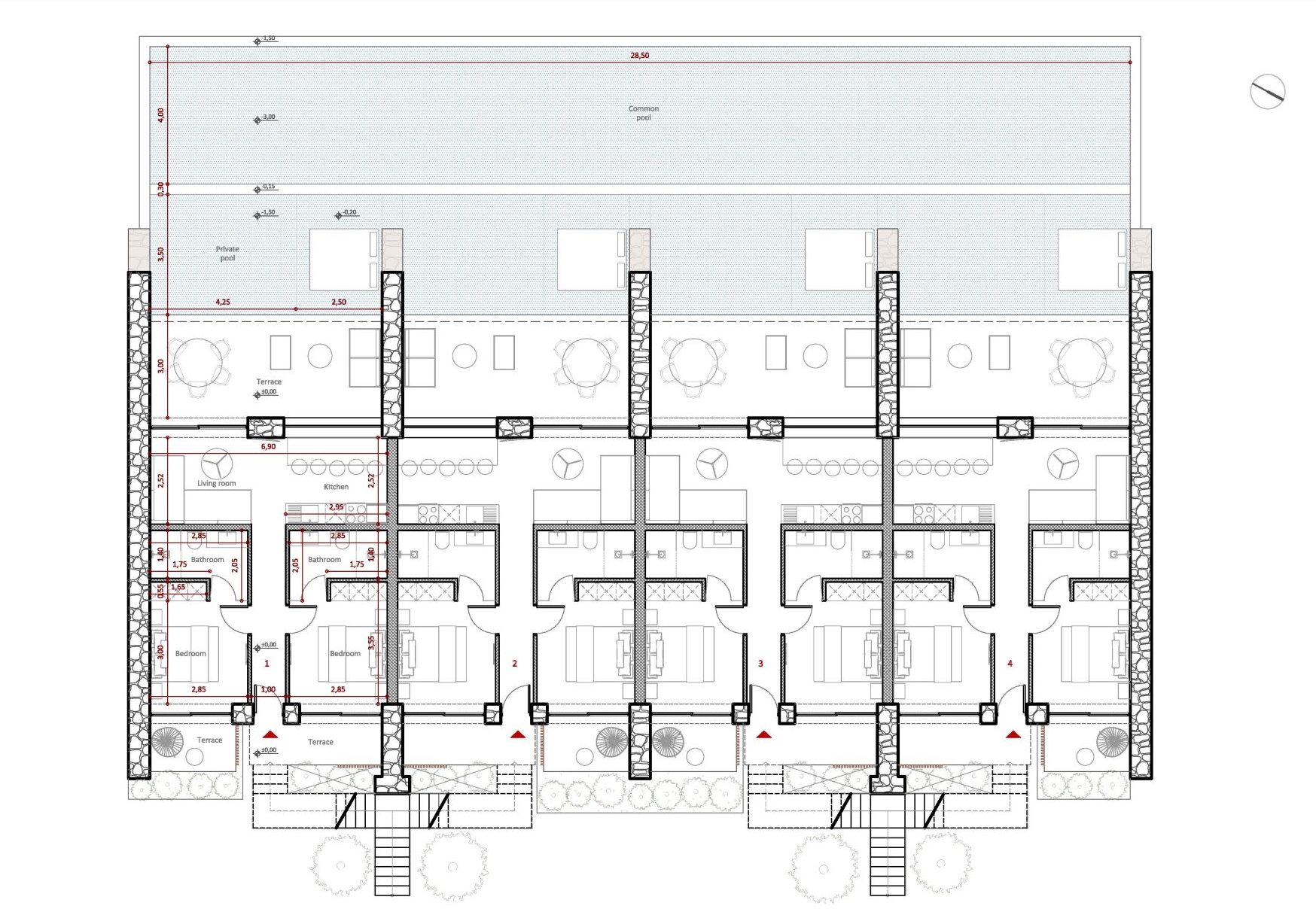
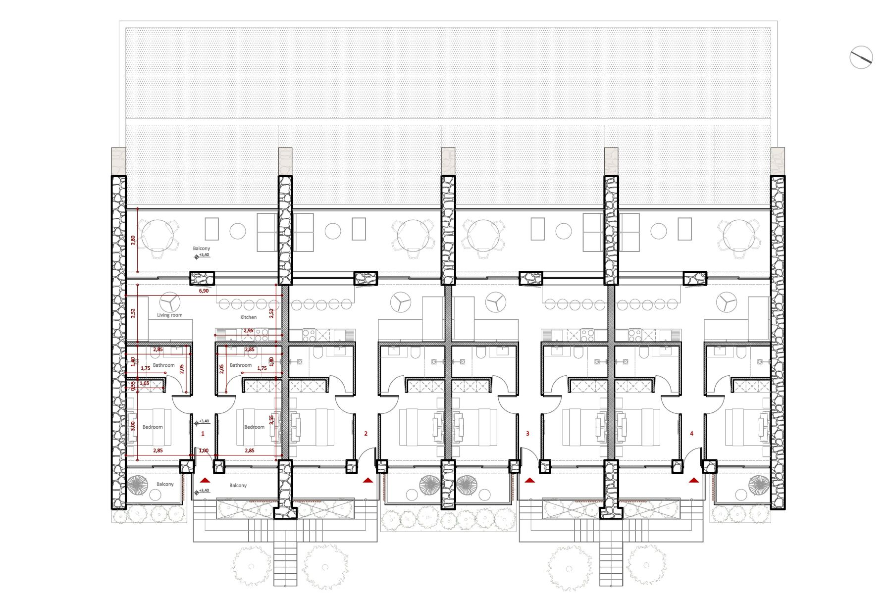
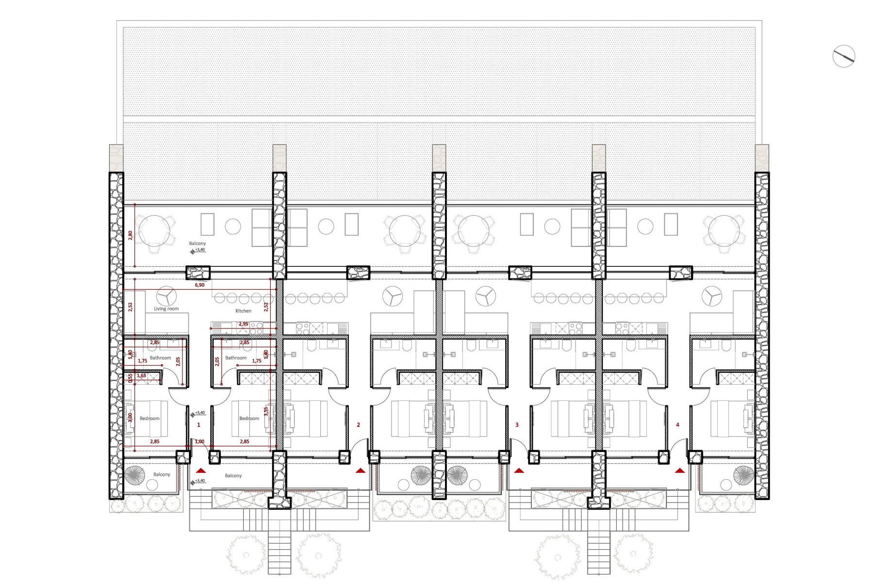
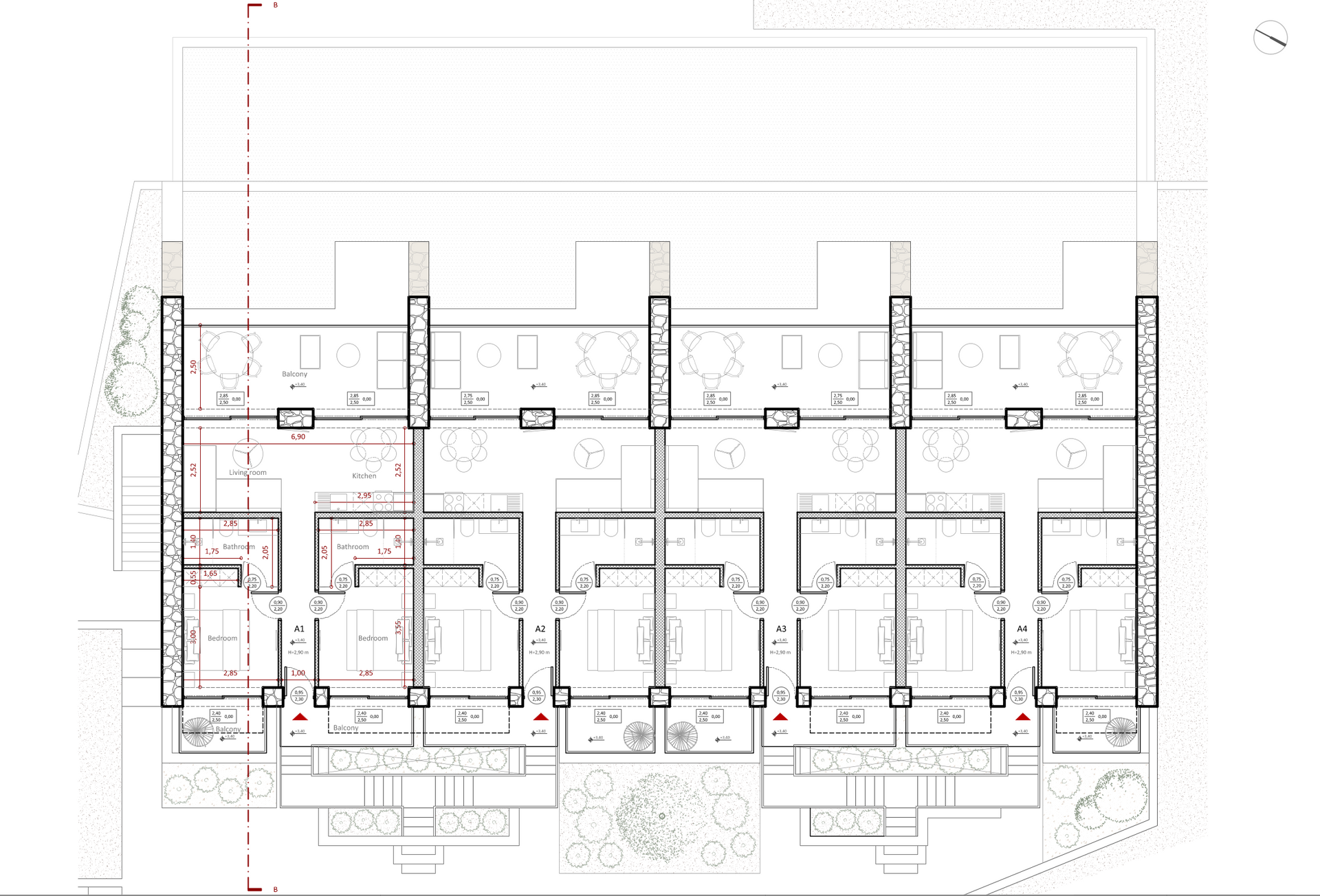
Grundrisse und Ansichten
4 Erdgeschoß Apartments
Jedes der knapp 54m2 großen Apartments verfügt über 2 Schlafzimmer mit Ensuite-Badezimmer und eine Wohn-Küche von der aus man nicht nur die 20m2 Terrasse und den Pool sondern auch die Navarino Bucht überblicken kann.
Diese 4 Apartments verfügen jeweils über einen direkten Einstieg in den Gemeinschaftspool.
Zugang zu den Apartments erfolgt über die Rückseite, auf der jedes der Schlafzimmer eine kleine eigene Terrasse hat.

4 Obergeschoß Apartments
Jedes der knapp 54m2 großen Apartments verfügt über 2 Schlafzimmer, ausgestattet mit King-Size Betten und Einbauschrank, mit Ensuite-Badezimmer und eine Wohn-Küche mit großer Glasfront, der Ausblick erstreckt sich über die 20m2 Terrasse, den Pool bis hin zum Meer.
Zugang zu den Apartments erfolgt über die Rückseite, auf der jedes der Schlafzimmer eine kleine eigene Terrasse hat.

Untergeschoß
Das Untergeschoß bietet neben der notwendigen Technikräume auch ein WC und knapp 2m2 Storage-Raum für jedes Apartment.

Grundrisse und Ansichten
4 Erdgeschoß Apartments
Jedes der knapp 54m2 großen Apartments verfügt über 2 Schlafzimmer mit Ensuite-Badezimmer und eine Wohn-Küche von der aus man nicht nur die 20m2 Terrasse und den Pool sondern auch die Navarino Bucht überblicken kann.
Diese 4 Apartments verfügen jeweils über einen direkten Einstieg in einen kleinen separierten Poolbereich.
Zugang zu den Apartments erfolgt über die Rückseite, auf der jedes der Schlafzimmer eine kleine eigene Terrasse hat.

4 Obergeschoß Apartments
Jedes der knapp 54m2 großen Apartments verfügt über 2 Schlafzimmer, ausgestattet mit King-Size Betten und Einbauschrank, mit Ensuite-Badezimmer und eine Wohn-Küche mit großer Glasfront, der Ausblick erstreckt sich über die 20m2 Terrasse, den Pool bis hin zum Meer.
Zugang zu den Apartments erfolgt über die Rückseite, auf der jedes der Schlafzimmer eine kleine eigene Terrasse hat.

Untergeschoß
Das Untergeschoß bietet neben der notwendigen Technikräume auch ein WC und knapp 2m2 Storage-Raum für jedes Apartment.









Baufortschritt:
Bildtitel
Untertitel hier einfügenButton
Bildtitel
Untertitel hier einfügenButton
Bildtitel
Untertitel hier einfügenButton
Bildtitel
Untertitel hier einfügenButton
Bildtitel
Untertitel hier einfügenButtonBildtitel
Untertitel hier einfügenButtonBildtitel
Untertitel hier einfügenButton
Bildtitel
Untertitel hier einfügenButton
Bildtitel
Untertitel hier einfügenButton
Bildtitel
Untertitel hier einfügenButton
Bildtitel
Untertitel hier einfügenButton
Bildtitel
Untertitel hier einfügenButton

